ПрАТ «ДТЕК Київські регіональні електромережі» буде проводити профілактичні роботи у межах Гірської сільської територіальної громади 16.04.2026
Запрошуємо вас на загальні Великодні панахиди, які будуть звершуватись на кладовищах с. Гора священиком Православної Церкви України, настоятелем парафії на честь Святого Архістратига Божого Михаїла с. Гора протоієреєм Олександром Сорокіним. 16.04.2026
Нагадуємо про необхідність сплати земельного податку, а також податку на нерухоме майно, відмінне від земельної ділянки з фізичних осіб станом на 09.04.2026 14.04.2026
Засідання постійної комісії з питань бюджету, фінансів, соціально економічного та культурного розвитку 14.04.2026
Засідання постійної комісії з питань прав людини, законності, депутатської діяльності, етики та регламенту 14.04.2026
Засідання комісії з питань освіти, культури, сім’ї, молоді, спорту, у справах релігії, соціального захисту населення та охорони здоров’я 14.04.2026
Засідання комісії з питань земельних відносин, планування територій, будівництва, архітектури, охорони пам’яток, історичного середовища 14.04.2026
Повідомляємо, що на території громади здійснюються чергування на контейнерних (сміттєвих) майданчиках інспекторами відділу благоустрою спільно з представниками муніципальної охорони. 10.04.2026
ПрАТ «ДТЕК Київські регіональні електромережі» буде проводити профілактичні роботи у межах Гірської сільської територіальної громади 09.04.2026
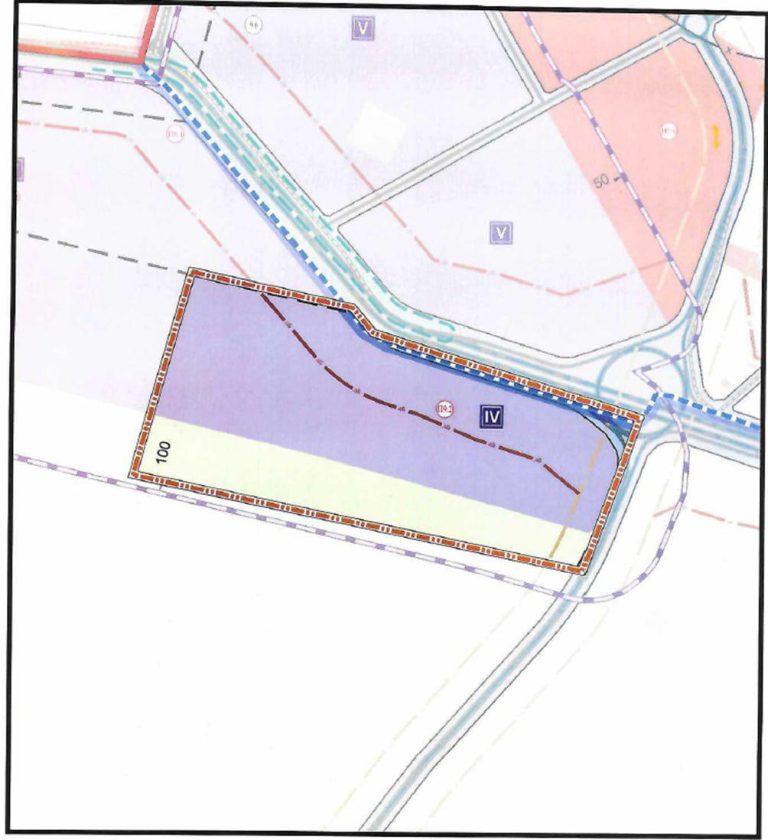
Розробка Детального плану території для будівництва об’єкта: “Нове будівництво торгово-розважального комплексу” в селі Гора 07.04.2026
Розробка Детального плану території з метою визначення планувальної організації виробничо-складської забудови земельних ділянок 07.04.2026